ユーミーMitsuki 
up

ユーミーMitsuki  画像1ユーミーMitsuki  画像2ユーミーMitsuki  画像3ユーミーMitsuki  画像4ユーミーMitsuki  画像5ユーミーMitsuki  画像6ユーミーMitsuki  画像7ユーミーMitsuki  画像8ユーミーMitsuki  画像9ユーミーMitsuki  画像10
賃料
5.2万円
マンション
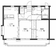
間取
2LDK
共益費・管理費
0円
敷金
10.4万円
礼金
所在地 宮崎県宮崎市大字新名爪  7番地2
交通
JR日豊本線蓮ケ池駅までバスで10分 / 新名爪バス停まで徒歩1分
築年月 2009/05 新築/中古 中古
面積 51.85m² 計測方式
バルコニー 向き 南西
建物階数 地上3階  部屋階数 2階
部屋/区画番号 201 総戸/区画数 15
建物構造 RC
間取内容
住宅保険料 要 
駐車場 空有 1台目3,300円(税込) 2台目3,300円(税込) 取引態様 仲介
引渡/入居時期 期日指定 2026/02 上旬 現況 賃貸中
周辺環境 住吉小学校 住吉中学校
コンビニまで約600m、スーパーまで約700m、総合病院まで約1700m
設備・条件
水道:公営, ガス:プロパン, 排水:下水, バス:専用, トイレ:専用, バス・トイレ別, シャワー, コンロ:ガス, 給湯, 追い焚き, 洗髪洗面化粧台, 冷暖房:エアコン, 洗濯機置場:室内, BSアンテナ, バルコニー, フローリング, インターネット:対応, 角部屋, 温水洗浄便座, 独立洗面, 敷地内ゴミ置き場有り, シューズボックス:有り, カウンターキッチン、楽器相談:不可, 事務所:不可, 2人入居:可, ペット:不可
物件番号 20251223-M03-K060 掲載期限日 2026/01/27
自社物 先物 状態
特記事項 加入要(賃貸保証会社:ジェイリース株式会社、総賃料の80%(初回のみ)+月々800円)
ジェイリース保証料 : 46,880円、火災保険料 : 18,000円
仲介手数料 57,200円
★2年間家賃5,000円減額物件★角部屋に空きが出ます!人気のカウンターキッチン★2階で日当たり良く洗濯物がよく乾きます。収納も多くお部屋を広々使えます!!
◎スーパー(マルショク)、ホームセンター(ハンズマン)など近くて、生活環境も良好です!!また、市街地中心地まで車で約17分の距離ですので通勤距離範囲内ですね!
ユーミーMitsuki  画像11ユーミーMitsuki  画像12ユーミーMitsuki  画像13ユーミーMitsuki  画像14ユーミーMitsuki  画像15ユーミーMitsuki  画像16ユーミーMitsuki  画像17
※物件掲載内容と現況に相違がある場合は現況を優先と致します。
  • up
    S・ASAGIRI S・ASAGIRI
    5.8万円 2LDK
    宮崎市昭栄町
  • up
    ジェネシス大島Dジェネシス大島D
    5.3万円 2DK
    宮崎市大島町平原
  • up
    ユーミーMinato ユーミーMinato
    6.5万円 2LDK
    宮崎市稗原町
  • up
    クロスワイズ中西町 クロスワイズ中西町
    7.2万円 2LDK
    宮崎市中西町
合同会社 一禾 あしなが不動産
宮崎県知事(1)第5149号
代表 一枝 優次
TEL  0985-71-5116
FAX  0985-71-3355
携帯 070-4095-2077
mail info@est.adsys/jp
URL   https://est.adsys.jp/
住所 宮崎県宮崎市中村西1丁目3番4号1階